ATRIA

Privatna oaza u zagrljaju kamena

Mediteran

66m² + 21m²

Cijena od:

62.700€

(Nativo Monolit)

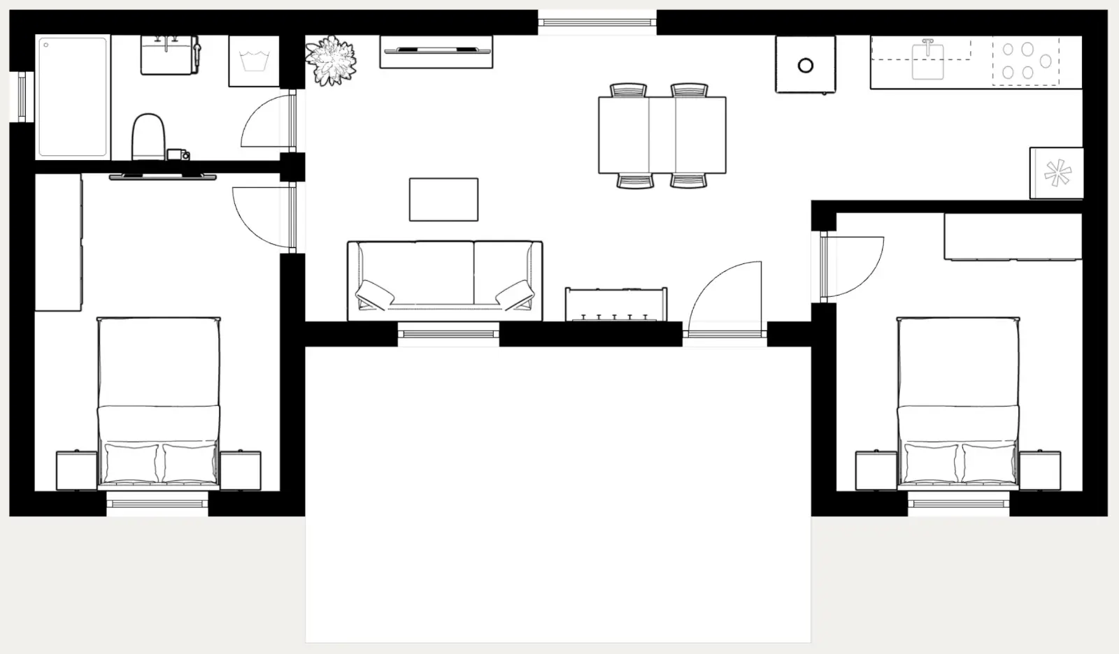
Model Atria svojim jedinstvenim U-tlocrtom redefinira pojam privatnosti na 66m2. Arhitektura kuće osmišljena je u tri zone: dva bočna krila u kojima su smještene spavaće sobe za miran san, te središnji volumen s otvorenim prostorom kuhinje, blagovaonice i dnevnog boravka koji spaja cijelu obitelj. ​Ovakav "zagrljeni" oblik kuće nije slučajan – istureni blokovi spavaćih soba prirodno štite središnju terasu od vjetra i znatiželjnih pogleda, stvarajući intiman vanjski atrij koji postaje produžetak vašeg dnevnog boravka. Dok unutrašnjost nudi pametno iskorišten svaki kvadrat s kupaonicom i open-space zonom, vanjština oduševljava bogatim krovom od crijepa u mediteranskom stilu i autentičnom kamenom fasadom koja skriva vrhunsku STIROTON izolaciju. Atria je dom koji vas čuva – idealan za obitelji koje žele toplinu zajedništva, ali i svoj mirni kutak.

Razine Završenosti

NATIVO MONOLIT 
Dobivate kompletnu konstrukciju izlivenu kao cjelinu. To nisu samo zidovi – to je formirani, monolitni objekt s već pripremljenim otvorima za vrata i prozore. Dobivate čvrst oblik kuće, spreman za završne radove.

• Što je uključeno: Čelična konstrukcija, kompletna armatura i oplata zalivena STIROTON smjesom (400 kg/m3).
• Ključna prednost: Dobivate prefabricirani monolitni objekt bez spojeva. U zidovima su već ugrađene cijevi (bužiri) za struju i priprema za vodu/odvodnju. Nema naknadnog štemanja zidova!
• Za koga je ovo: Za investitore koji imaju vlastite ekipe za završne radove ili žele rastegnuti investiciju kroz vrijeme.

Nativo Monolit cijena: 62.700€

NATIVO EXTERIOR
Idealno rješenje ako želite odmah definirati vizuru objekta, a unutrašnjost uređivati polako.

• Sve iz Nativo Monolit
• Krov: Postavljen pokrov (crijep/lim) na već postojeću konstrukciju školjke.
• Stolarija: Vrhunska vanjska stolarija (prozori i ulazna vrata) koja hermetički zatvara objekt.
• Fasada: Nanosi se završni sloj fasade. Kuća izvana izgleda potpuno useljivo.
• Za koga je ovo: Za one koji žele osigurati objekt od vremenskih neprilika i “zatvoriti” gradilište prema susjedima.

Nativo Exterior cijena: 95.700€

NATIVO PREMIUM 
Bez stresa, bez traženja majstora. Dobivate ključ i unosite namještaj.

• Sve iz Nativo Exterior
• Provlačenje kablova kroz pripremljene bužire i fina montaža (utičnice, prekidači).
• Podne obloge (parket, laminat, keramika visokog profila).
• Obrada unutarnjih zidova (gletanje, bojanje).
• Kompletno opremljena kupaonica (sanitarije, slavine).
• Unutarnja stolarija (sobna vrata).

Nativo Premium cijena: 145.200€

*NAPOMENA: Cijene su izražene bez PDV-a.
NAPOMENA: Što nije uključeno u cijenu? Iskazane cijene odnose se na objekt (modul) fco. tvornica.
U cijenu nisu uračunati sljedeći troškovi koji ovise o specifičnostima vaše lokacije:
- Priprema terena i temelji: Iskop, betonaža temelja ili ploče.
- Transport i montaža: Prijevoz modula do zemljišta i najam dizalice za istovar.
- Administracija: Građevinska dozvola, geodetski projekt te komunalni i vodni doprinosi.
- Priključci: Spajanje objekta na javnu mrežu (struja, voda, kanalizacija).
- Vanjsko uređenje: Terase, nadstrešnice, ograde i okoliš (moguće ugovoriti zasebno).
- Opcija Terasa: Natkrivena terasa (kao na vizualizaciji) nije uključena u cijenu kvadrata stambenog prostora. Moguća je izvedba uz nadoplatu.

Istražite ostale NATIVO modele

Cijena od:  57.000€

Cijena od:  57.000€

Cijena od:  19.000€